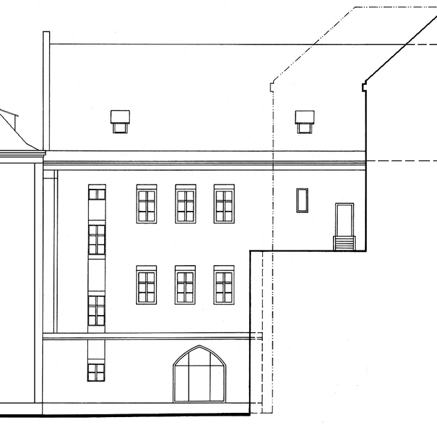
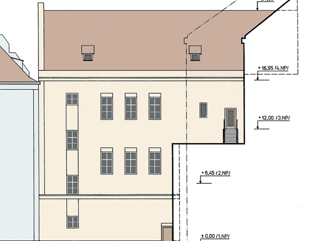
Velké okno
Nyní doplňuji ještě zadní (dvorní) průčelí nového radničního křídla. To mělo také svoje proměny, zejména v přízemí, kde jsem zrušil velké okno a nahradil ho vstupem do dvora. 1.nadzemní podlaží je osvětlené již velkými okny do náměstí a navrženým originálním osvětlením talířovými lustry. Průchod je pro zásobování z této strany budovy i pro návštěvníky k odpočívadlu a občerstvení.
Jiří Stratil
Májová
Tato další básnička na téma „máj“ je psaná v mém současném stylu, ve kterém se zaměřuji na celkové prorýmování textu.
Jiří Stratil
Máj, první část (K.H.Mácha) + vlastní inspirace básní
První část básnické povídky Máj K.H.Máchy mě inspirovala k napsání svého vlastního pojetí této části díla. Jedná se i o jiný přístup k některým obsahovým skutečnostem a výrazům básně.
Jiří Stratil
V přírodě
Po dlouhé době, kdy jsem napsal mnoho dalších básní (viz např. server Pise.cz nebo Písmák.cz), se opět vracím sem se svou básničkou o přírodě.
Jiří Stratil
Uleť / Malá meditace / Jaký? / Kolotoč lidský
Po delší odmlce jsem tu opět s několika svými posledními básničkami, z dlouhého výčtu napsaných básní, uveřejněných třeba na serveru Pise.cz.
Jiří Stratil
Nové básně
Opět zde vybírám několik básniček ze své poslední tvorby, zveřejňované na serverech Pise.cz, Písmák.cz, Basnicky.cz a PeopleLovePeople.com.
| Další články autora |
Hastroši na Pražském hradě aneb Den otevřených dveří z pohledu výchovy k tanci a kultuře
Byl jsem jeden z těch, kteří po Zemanově zabetonování Pražského hradu do tohoto největšího hradního...
Dvorecký most promění také pražskou autobusovou dopravu v Praze. Máme velký přehled
Už zítra se slavnostně otevře Dvorecký most, nová 361 metrů dlouhá spojnice přes Vltavu mezi...
Speciální tramvaje i plavby zdarma. Slavnostní otevření Dvoreckého mostu bude velkolepé
Spojuje lidi s prací, školou, rodinou, zábavou i kulturou. Je neodmyslitelnou součástí životů...
7+2 nejhorších výletních cílů v Česku. Hororové kulisy, pasti na turisty i skutečně nebezpečný les
Kam na výlet po Česku? Kromě zaručených míst slibujících skvělé zážitky existují i lokality, kam...
Dvorecký most se pro veřejnost otevře už zítra. Kolem je zatím staveniště
V pátek 17. dubna 2026 se po novém Dvoreckém mostě projedou první tramvaje a autobusy plné...
Sídlo gestapa i někdejší sirotčinec. V Ústeckém kraji je na prodej několik zámků
V Ústeckém kraji je na prodej jedna z nejvíce zdevastovaných památek regionu. Za zámek z poloviny...
Stanice metra Rajská zahrada a Černý Most jsou uzavřeny kvůli požáru střelnice
Dvě stanice pražského metra Rajská zahrada a Černý Most na trase B jsou uzavřeny kvůli požáru v...
Policisté pátrají po vězni, který odešel z nestřeženého pracoviště v Jirnech
Policisté pátrají po vězni, který dnes odpoledne odešel z nestřeženého pracoviště v Jirnech u...
Komise doporučila pojmenování stanic linky D metra v Praze. Tři z nich změnila
Místopisná komise rady Prahy doporučila vedení města pojmenování stanic budované linky metra D....

Pronájem bytu 3+kk 87 m2 Handkeho, Olomouc - Nové Sady
Handkeho, Olomouc - Nové Sady
20 000 Kč/měsíc






















