Originální síň v přízemí nového křídla Staroměstské radnice
Část gotických kleneb přízemí jižního křídla Staroměstské radnice (WWAPhoto)
-
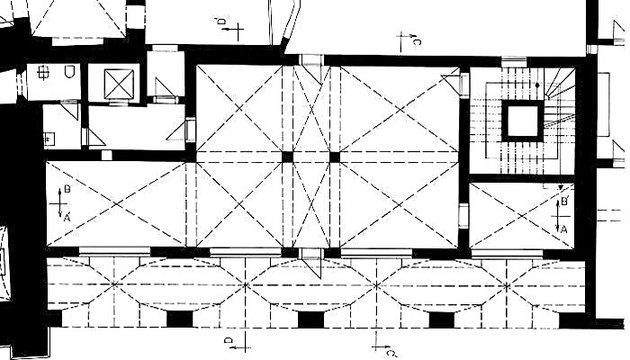
Rozčleněný prostor vestibulu tvoří několik klenebních polí (travé) s elipčitě a kruhově valenými křížovými klenbami, které dodávají zaklenutí moderního dynamického vzhledu. Naproti tomu kontrastní klenutí loubí budovy je v polích s 2x lomeným obloukem, což představuje opět nový architektonický prvek.
Půdorys
Podélný řez loubí
Podélný řez síně vestibulu A-A´ - pohled ke vstupu z náměstí
Podélný řez B-B´, část - pohled ke vstupu ze dvora
Příčný řez C-C´- pohled ke vstupu na schodiště
Příčný řez D-D´- pohled ke vstupu k výtahu
Jiří Stratil
Májová
Tato další básnička na téma „máj“ je psaná v mém současném stylu, ve kterém se zaměřuji na celkové prorýmování textu.
Jiří Stratil
Máj, první část (K.H.Mácha) + vlastní inspirace básní
První část básnické povídky Máj K.H.Máchy mě inspirovala k napsání svého vlastního pojetí této části díla. Jedná se i o jiný přístup k některým obsahovým skutečnostem a výrazům básně.
Jiří Stratil
V přírodě
Po dlouhé době, kdy jsem napsal mnoho dalších básní (viz např. server Pise.cz nebo Písmák.cz), se opět vracím sem se svou básničkou o přírodě.
Jiří Stratil
Uleť / Malá meditace / Jaký? / Kolotoč lidský
Po delší odmlce jsem tu opět s několika svými posledními básničkami, z dlouhého výčtu napsaných básní, uveřejněných třeba na serveru Pise.cz.
Jiří Stratil
Nové básně
Opět zde vybírám několik básniček ze své poslední tvorby, zveřejňované na serverech Pise.cz, Písmák.cz, Basnicky.cz a PeopleLovePeople.com.
| Další články autora |
Galerie: Tramvaje ze Škody míří do Itálie i Německa. Takhle vypadají české vozy pro Evropu
Většina Čechů zná tramvaje Škoda především z pražských ulic nebo z dalších krajských měst. Jen...
O solitérech v Praze. Některé stavby jsou jako pěst na oko. Třeba panelák v Braníku
Kdo viděl film Tam na konečné z roku 1957, pravděpodobně ho zaujalo nejen zpracování v duchu...
Záhadné schody v Kunratickém lese mají vysvětlení. Sloužily při šlechtických honech
V srdci Kunratického lesa chátrají podivuhodné schody, které vedou „odnikud nikam“. Před bezmála...
Provoz metra na části linky C přerušen. Na Hlavním nádraží zemřel člověk pod soupravou
Provoz metra na lince C je v pondělí dopoledne přerušen mezi stanicemi Florenc a Pražského...
Kam v březnu v Praze zdarma? 7 tipů od poslechovky po pochod ve Stromovce
Vybrali jsme sedm pražských akcí zdarma – koncerty, festival, výstavy i přednášky, které můžete...
Lezce ve štolách na Kutnohorsku zradily svítilny, zachránili je hasiči
Hasiči dnes ve Vlastějovicích na Kutnohorsku zachraňovali čtyři lezce, kteří se dostali do problémů...
Blanenská galerie vystavuje tvorbu výtvarnic, které překročily osmdesátku
Tvorbu výtvarnic, které překročily osmdesátku, představuje ode dneška Galerie města Blanska....
Policisté našli 57letou ženu z Kolína, kterou pohřešovala její dcera
Policisté vypátrali sedmapadesátiletou ženu z Kolína, kterou pohřešovala její dcera. Naposledy ji...
Na Sněžce zavlály tibetské vlajky, akce přilákala desítky lidí
Dnešní akce Tibetská vlajka na střeše republiky se zúčastnily desítky lidí. Výstup s tibetskou...

Zemědělská půda, prodej, Chrášťovice, Mladotice, Plzeň sever
Mladotice - Chrášťovice, okres Plzeň-sever
2 913 255 Kč

























