Když to rozříznu
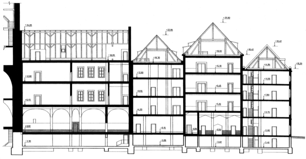
Ze svislého podélného řezu budovami dostavby Staroměstského náměstí je patrné rozdělení domů v patrech, s přidaným podzemním podlažím suterénu. Radniční křídlo má vstupní vestibul s klenbami, průchozí také do dvora. Dále pak dvě poschodí a rovněž využitelné podkroví, propojené schodištěm a výtahem. V přízemní síni je uvažovaná reklamní výstavní činnost pro informační potřeby města, případně i jiné výstavy. Obě poschodí a podkroví by měla variabilní využití (např. kanceláře, reprezentační síně).
Také pro přiléhající domy, které mají vždy tři poschodí a podkroví, jsou uvažovány převážně variabilní funkce. Druhý a třetí dům mají společné schodiště a všechny také výtah. V třetím domě v pořadí od věže je navržena malá kavárna i s venkovním posezením ve dvoře. Poslední, nejmenší dům, který uzavírá soubor staveb před kostelem sv.Mikuláše, by mohl cele sloužit dlohodobým výstavním expozicím. Např.: "Stavební a historický vývoj Staroměstského náměstí" nebo třeba "Život a dílo K.I.Dienzenhofera" apod, s krásným výhledem na průčelí kostela ve všech poschodích. Suterén by dle potřeby a možností zohledňoval případné vzácné archeologické nálezy a sloužil zejména technickému zázemí budov.
(J.S.)
Jiří Stratil
Májová
Tato další básnička na téma „máj“ je psaná v mém současném stylu, ve kterém se zaměřuji na celkové prorýmování textu.
Jiří Stratil
Máj, první část (K.H.Mácha) + vlastní inspirace básní
První část básnické povídky Máj K.H.Máchy mě inspirovala k napsání svého vlastního pojetí této části díla. Jedná se i o jiný přístup k některým obsahovým skutečnostem a výrazům básně.
Jiří Stratil
V přírodě
Po dlouhé době, kdy jsem napsal mnoho dalších básní (viz např. server Pise.cz nebo Písmák.cz), se opět vracím sem se svou básničkou o přírodě.
Jiří Stratil
Uleť / Malá meditace / Jaký? / Kolotoč lidský
Po delší odmlce jsem tu opět s několika svými posledními básničkami, z dlouhého výčtu napsaných básní, uveřejněných třeba na serveru Pise.cz.
Jiří Stratil
Nové básně
Opět zde vybírám několik básniček ze své poslední tvorby, zveřejňované na serverech Pise.cz, Písmák.cz, Basnicky.cz a PeopleLovePeople.com.
| Další články autora |
Galerie: Tramvaje ze Škody míří do Itálie i Německa. Takhle vypadají české vozy pro Evropu
Většina Čechů zná tramvaje Škoda především z pražských ulic nebo z dalších krajských měst. Jen...
O solitérech v Praze. Některé stavby jsou jako pěst na oko. Třeba panelák v Braníku
Kdo viděl film Tam na konečné z roku 1957, pravděpodobně ho zaujalo nejen zpracování v duchu...
Záhadné schody v Kunratickém lese mají vysvětlení. Sloužily při šlechtických honech
V srdci Kunratického lesa chátrají podivuhodné schody, které vedou „odnikud nikam“. Před bezmála...
Kam v březnu v Praze zdarma? 7 tipů od poslechovky po pochod ve Stromovce
Vybrali jsme sedm pražských akcí zdarma – koncerty, festival, výstavy i přednášky, které můžete...
Lavičky v „Sherwoodu“ u stanice Praha hlavní nádraží zmizely. Proč se vrátí jen 40 procent?
Z Vrchlického sadů kolem železniční stanice Praha hlavní nádraží byly během posledního únorového...
SP v biatlonu pokračuje po olympiádě v Kontiolahti. Český tým však trápí marodka
Čeští biatlonisté se vrací do kolotoče Světového poháru. Do finského Kontiolahti zamířila...
Biatlon v Kontiolahti 2026: Voborníková ve vytrvalostním závodě navázala na výkony ze ZOH
Světový pohár v biatlonu pokračuje po olympijských hrách závody ve finském Kontiolahti. Do...
Galerie Telegraph otevřela výstavu mapující rumunskou figurativní malbu
Rumunskému výtvarnému umění zasvětila svou novou výstavu olomoucká Telegraph Gallery. Expozice s...
Dvůr Králové schválil smlouvu s investorem bazénu a potápěčského centra
Zastupitelé Dvora Králové nad Labem na Trutnovsku dnes schválili smlouvu o spolupráci se soukromou...

Prodej rodinného domu, 128 m2, Pohledy - Horní Hynčina
Pohledy - Horní Hynčina, okres Svitavy
4 680 000 Kč



















