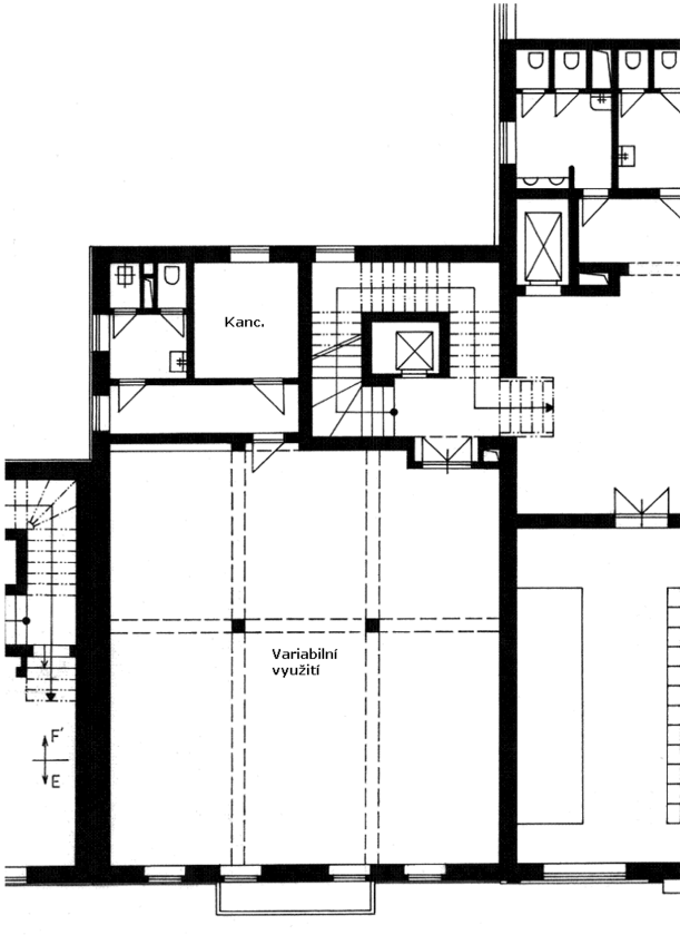
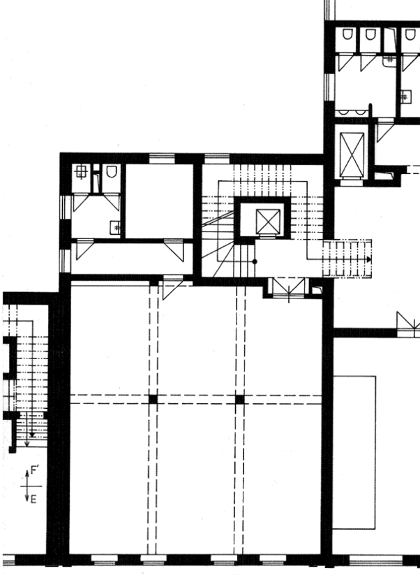
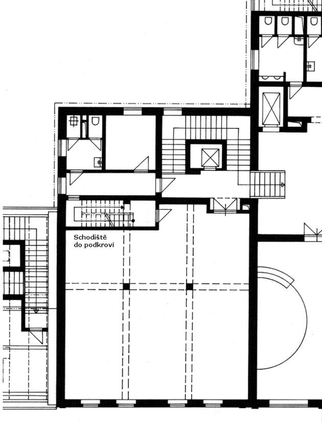
A jak v patrech?
Byl zde vznesen dotaz ohledně komunikačního propojení v domě schodištěm. To je společné pro obě budovy a umožňuje spojení všech jejich nadzemních podlaží i suterénu. Z chodby v přízemí je schodiště, točící se kolem osobního výtahu, přístupné pro prodejnu i kavárnu, v poschodích se z něho vstupuje přímo do interiérových prostor obou domů (do vyšších podlaží sousedního objektu vyrovnávacím ramenem).
Zatímco v 1.NP je půdorys interiéru zařízen pro provoz malé prodejny, v 2.- 4.NP je interiér co nejvíce uvolněn pro možnost variabilního využití prostoru. Podobně tak jsou navrženy i půdorysy v poschodích sousedního domu (nad kavárnou). Obě propojené budovy v jednu tak mohou být využívány třeba v zastoupení jedinou firmou vhodného zaměření. Rovněž pro pořádání firemních reklamních výstav, doplněných různými programy (videoprojekce, přednášky, besedy, koncerty, humoristé apod).
Stavba je také logicky konstrukčně navržená i provozně promyšlená, dle daných možností urbanismu a architektury dostavby této proluky.
1.NP (přízemí)
2.NP
3.NP
4.NP
Řez schodištěm
Jiří Stratil
Májová
Tato další básnička na téma „máj“ je psaná v mém současném stylu, ve kterém se zaměřuji na celkové prorýmování textu.
Jiří Stratil
Máj, první část (K.H.Mácha) + vlastní inspirace básní
První část básnické povídky Máj K.H.Máchy mě inspirovala k napsání svého vlastního pojetí této části díla. Jedná se i o jiný přístup k některým obsahovým skutečnostem a výrazům básně.
Jiří Stratil
V přírodě
Po dlouhé době, kdy jsem napsal mnoho dalších básní (viz např. server Pise.cz nebo Písmák.cz), se opět vracím sem se svou básničkou o přírodě.
Jiří Stratil
Uleť / Malá meditace / Jaký? / Kolotoč lidský
Po delší odmlce jsem tu opět s několika svými posledními básničkami, z dlouhého výčtu napsaných básní, uveřejněných třeba na serveru Pise.cz.
Jiří Stratil
Nové básně
Opět zde vybírám několik básniček ze své poslední tvorby, zveřejňované na serverech Pise.cz, Písmák.cz, Basnicky.cz a PeopleLovePeople.com.
| Další články autora |
Vánoční strom na kruháči na pražském Žižkově. Gerilová akce místních se proměnila v oficiální výzdobu
Děkuji touto cestou neznámému, který nám opět ozdobil kruháč Ambrožova/Šrámkové krásným vánočním...
Kdo ví víc o Vánocích? Otázky, které prověří i Ježíška
Zazvonil zvoneček! Je čas zjistit, jestli máte srdce vánočního elfa, nebo duši lehce kyselého...
Fotky metra, které vás dostanou: Vyhlásili jsme výherce fotosoutěže
Pražské metro se proměnilo v galerii. Alespoň tedy v očích desítek fotografů, kteří se zapojili do...
Pražané rozhodli: Oblíbeným místem v MHD je také „záchod“. Proč ho cestující milují?
Pohodlí, prostor, soukromí, otočení v prostoru prostředku hromadné dopravy, ale i výhled. To vše...
Kde mají nejlevnější burger? Porovnali jsme pět největších fastfoodů v Česku
Už za pár dní rozvíří vody českého fastfoodového rybníčku příchod nového, dlouhé měsíce očekávaného...
Dvě velké kantáty od Janáčka a Rejchy dnes uvede brněnská filharmonie
Dvě velké kantáty od Leoše Janáčka a Antonína Rejchy dnes uvede brněnská filharmonie. Koncert...
Prezident Pavel pokračuje v návštěvě Libereckého kraje, zamíří i do Ralska
Druhým dnem pokračuje návštěva prezidentského páru Petra a Evy Pavlových v Libereckém kraji. Na...
Pět lidí se v Ostravě zranilo při srážce policejního vozu s osobním autem
Pět lidí se dnes v Ostravě zranilo při srážce policejního vozu Škoda Octavia s osobním autem Opel....
Beroun bude v příštím roce hospodařit se schodkem 302 milionů korun
Beroun bude v příštím roce hospodařit s příjmy 830 milionů a výdaji 1,1 miliardy korun. Schodek 302...

Sledujte Adventní kalendář 2025 a vyhrajte každý den nový dárek
Oslavte letošní svátky s eMiminem. Přichystali jsme pro vás na každý den nové výhry, kterými můžete rozmazlit sebe nebo je nachystat pod stromeček...























